bets10 giriş bets10 güncel adresi mobilbahis yeni adresi casinomaxi güncel
Telefon
WhatsApp
İnstagram
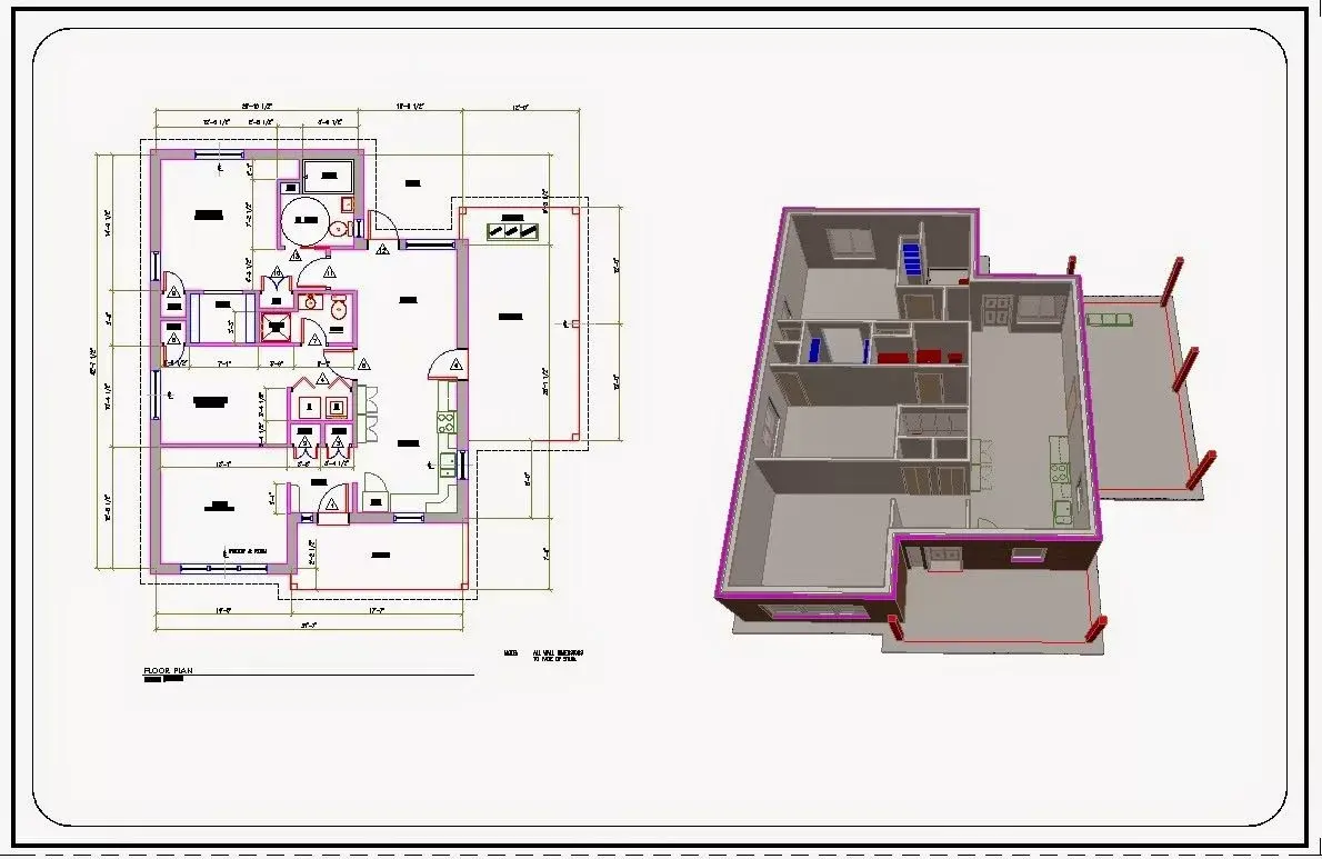
Röleve oluşturma

Röleve oluşturma

Röleve Oluşturma Hizmetleri

Tarihi binaların restorasyonu, yeni bir proje geliştirme veya mevcut bir yapının ölçülerini belirleme gibi durumlarda, doğru ve detaylı bir röleve oluşturmak önemlidir. Röleve oluşturma hizmetlerimizle, size ihtiyacınız olan doğru ölçüleri sağlamak için buradayız.

Hizmetlerimiz:

  1. Alanın Detaylı İncelenmesi: İlk adım olarak, röleve alınacak alanın detaylı bir şekilde incelenmesi ve ölçüm yapılması gerekmektedir. Profesyonel ekiplerimiz, bu süreci titizlikle yürüterek, mekanın tüm detaylarını kayıt altına alır.

  2. Ölçümlerin İşlenmesi: Elde edilen ölçümler, özel yazılımlar kullanılarak işlenir ve dijital ortama aktarılır. Bu sayede, ölçülerin doğruluğu ve hassasiyeti sağlanır.

  3. Röleve Oluşturma: İşlenen ölçümler ve detaylar, röleve oluşturma sürecinde kullanılır. Duvarlar, pencereler, kapılar, tavanlar ve diğer yapısal unsurlar detaylı bir şekilde çizilir ve belgelenir.

  4. Röleve Raporu: Oluşturulan röleve, bir rapor halinde sunulur. Bu rapor, projenin ilerleyen aşamalarında referans olabilecek detaylı bilgiler içerir.

Neden Bizi Tercih Etmelisiniz?

  • Deneyimli Uzmanlar: Röleve oluşturma konusunda deneyimli ve uzman bir ekiple hizmetinizdeyiz.
  • Hassas Ölçümler: En son teknolojiyle donatılmış ekipmanlarımızı kullanarak, ölçümleri hassas bir şekilde gerçekleştiriyoruz.
  • Detaylı Raporlama: Oluşturulan röleve raporları, projenin ilerleyen aşamalarında büyük önem taşıyan detaylı bilgiler içerir.

Tarihi binaların restorasyonu, yeni projelerin geliştirilmesi veya mevcut yapıların ölçülendirilmesi gibi durumlarda, doğru ölçümleri sağlamak için bize güvenebilirsiniz. Profesyonel ve detay odaklı hizmetlerimizle size yardımcı olmaktan mutluluk duyarız!

Bize Ulaşın

0 (532) 744 41 14

Hizmetlerimiz hakkında daha detaylı bilgi sahibi olmanız adına, sizi ofisimizde misafir etmekten mutluluk duyarız.

Bizimle İletişime Geçin
Yukarı Çık